ホーム
HOME
会社概要
ABOUT US
事業内容
SERVICE
実績一覧
ACHIEVEMENTS
新着情報
NEWS
お問い合わせ
CONTACT
日本語
/ English
日本語
JP
English
EN
HOME
>>
実績一覧
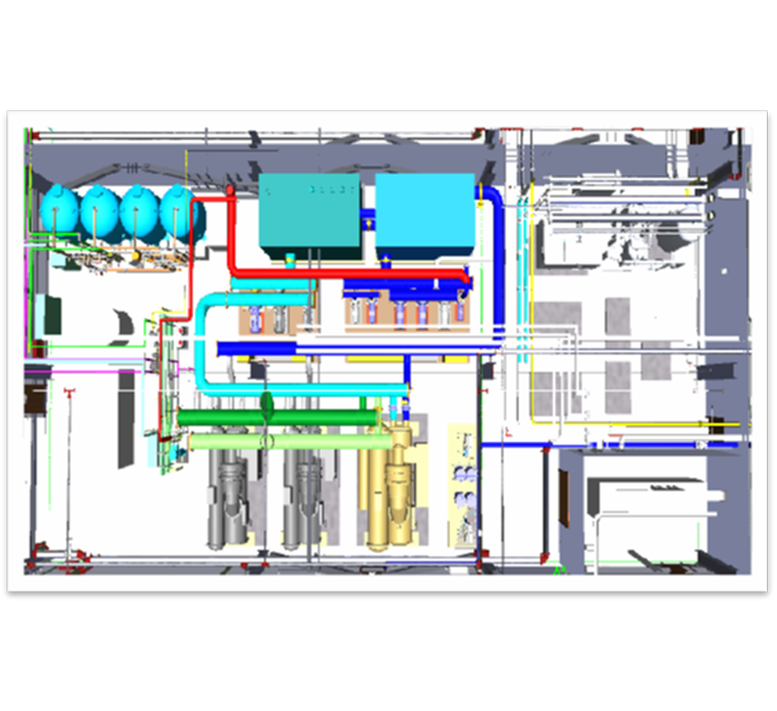
国際化粧品クライアント江蘇太倉新築液体洗剤工場プロジェクト
中央ユーティリティ工場EPCMプロジェクト
お問い合わせ
国際化粧品クライアント江蘇太倉新築液体洗剤工場プロジェクト
国際化粧品クライアント江蘇太倉新築液体洗剤工場プロジェクト
Copyright © 2026 RISEN All rights Reserved.
【プライバシーポリシー】